2-й Силикатный проезд, д.8

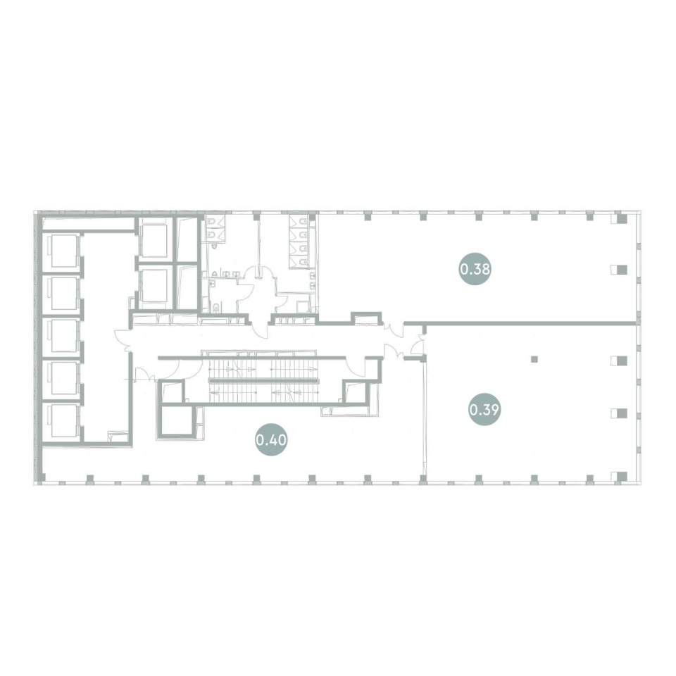
Продажа офиса, 140.4 м2
69 778 800 ₽
497 000 руб. за м2
+7 (495) 0670816
Площадь
140.4 м2
Этаж
17 из 27
Задать вопрос
+7 (495) 0670816
Рассрочка 0%
В проекте уже возведен монолит. Ведутся инженерные и фасадные работы.
Продается офисное помещение класса «А» площадью 140,4 м2 в ультрасовременном комплексе бизнес-класса - ЭМОУШН от ГК ОСНОВА, расположенном в престижном районе Хорошёво-Мнёвники.
Продажа от Застройщика.
Помещение находится на 17 этаже 3 корпуса. Имеет удобную эргономичную прямоугольную планировку, которая обеспечивает максимальную эффективность пространства. В офисе предусмотрен отдельный санузел и помещение для уборочного инвентаря, что подчёркивает высокий уровень функциональности и комфорта.
ХАРАКТЕРИСТИКИ
- Продажа по ДДУ
- Перспективная локация с высоким трафиком
- помещение санузла, помещение уборочного инвентаря
- высота потолков - 3 м
- панорамное остекление
- подземная парковка
- современные системы вентиляции, кондиционирования, пожаротушения, дымоудаления,
отвечающие всем нормам действующего законодательства.
- 7 лифтов на этаже
Комплекс ЭМОУШН располагается на территории Большого Сити - в масштабном проекте комплексного развития территории, который является одним из самых популярных бизнес-районов Москвы.
О ПРОЕКТЕ
- уникальная современная архитектура от бюро Камень
- функциональный подземный паркинг и скоростные лифты
- современные материалы и инженерные системы
- панорамное остекление и высокая инсоляция
- авторское благоустройство, амфитеатр, прогулочные зоны
- панорамные виды на город и «Москва-Сити»
- собственный СПА-комплекс с бассейном
- рестораны, кафе и магазины
ТРАНСПОРТнаЯ ДОСТУПНОСТЬ
- имеет быстрый выезд на Звенигородское шоссе
- до метро «Звенигородская» всего в 5 минутах пешком, м. «Полежаевская» 15-20 минут пешком.
- 10 минут до делового центра «Москва-Сити»
- 10 минут до Садового кольца
- 5 минут до ТТК
- 600 м до речного транспорта. Электрический трамвай соединяет 18 столичных районов.
ОКРУЖЕНИЕ
Территория Большого Сити является одним из самых востребованных бизнес-районов, где расположены офисы крупнейших компаний. Поблизости находится крупный деловой центр Москва-Сити, путь до которого займет всего 10 минут на автомобиле.
условия:
Продажа по ДДУ.
Покупка доступна в рассрочку.
Покупка возможна в лизинг на выгодных условиях.
Подробнее
Подробные характеристики
ID 221224161 Размещено 22 марта
Тип объекта Офисная недвижимость Район Хорошево-Мневники
Этаж 17 из 27 Год постройки 2027
Отопление Да Парковка Да
+7 (495) 0670816
ГК Основа
Размещено 22 марта
2-й Силикатный проезд, д.8
+7 (495) 0670816
Позвонить
Все новости
Новости рынка элитной недвижимости
Другие проекты LifeDeluxe
Портал msk.lifedeluxe.ru является частью глобального проекта LifeDeluxe, который включает в себя порталы об элитной недвижимости двух столиц и рынке зарубежной премиальной недвижимости. Жилая и коммерческая недвижимость бизнес- и элит-класса Санкт-Петербурга и Ленобласти представлена на lifedeluxe.ru. Предложения о покупке и аренде домов и квартир за границей вы найдете на world.lifedeluxe.ru. Мы помогаем сделать правильный выбор.
Аналитика и обзоры рынка