Люберцы, Рождественская улица, д.12

Продажа помещения различного назначения, 298.6 м2
65 732 000 ₽
220 134 руб. за м2
+7 (495) 1520879
Площадь
298.6 м2
Этаж
1 из 2
Метро
Некрасовка
Задать вопрос
+7 (495) 1520879
Текст: Помещение под МЕДцентр от ЗАСТРОЙЩИКА.
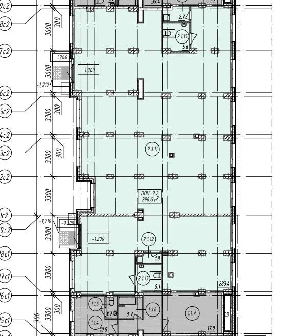
Нежилое помещение № 2.2, корпус 5.1, общей площадью 298,60 м2, первый этаж, 1 вход с улицы, 1 вход со двора. напротив муниципальный ДОО на 560 мест и Школа на 1500 мест. Помещение выходит на первую линию внутриквартального сквозного проезда. Есть стихийная парковка вдоль улицы. Высота потолков 4 м, выделенная мощность - 0,2кВт/ м2, состояние помещения - shell&core. заведены точки подключения к системам вентиляции, гвс/хвс, канализации. В помещении 9 больших витринных окон, предназначено под организацию поликлиники/мед. кабинета, под помещением - тех. этаж+кладовые.
Дом вводится в эксплуатацию в 3 кв. 2024 г.
ЖК сдан, заселен. Жилой комплекс расположен в 5 минутах езды от станций метро "Некрасовка», МЦД ст. Люберцы-1,2. Общее количеством квартир 4 700 шт. и населением более 8 000 человек.
Целевая продажа - под мед. услуги. Доступна беспроцентная рассрочка на 2 года, все подробности по телефону.
Подробнее
Подробные характеристики
ID 221223505 Размещено 1 января
Тип объекта Помещения свободного назначения Метро Некрасовка
Этаж 1 из 2 Год постройки 2024
Вид сделки Отделка Требует ремонта
Размещено 1 января
Люберцы, Рождественская улица, д.12
+7 (495) 1520879
Позвонить
Другие проекты LifeDeluxe
Портал msk.lifedeluxe.ru является частью глобального проекта LifeDeluxe, который включает в себя порталы об элитной недвижимости двух столиц и рынке зарубежной премиальной недвижимости. Жилая и коммерческая недвижимость бизнес- и элит-класса Санкт-Петербурга и Ленобласти представлена на lifedeluxe.ru. Предложения о покупке и аренде домов и квартир за границей вы найдете на world.lifedeluxe.ru. Мы помогаем сделать правильный выбор.
Все новости
Новости рынка элитной недвижимости
Аналитика и обзоры рынка